Sculpture Main House - 3 Bed, 3 Bath, 2,359 sqft.
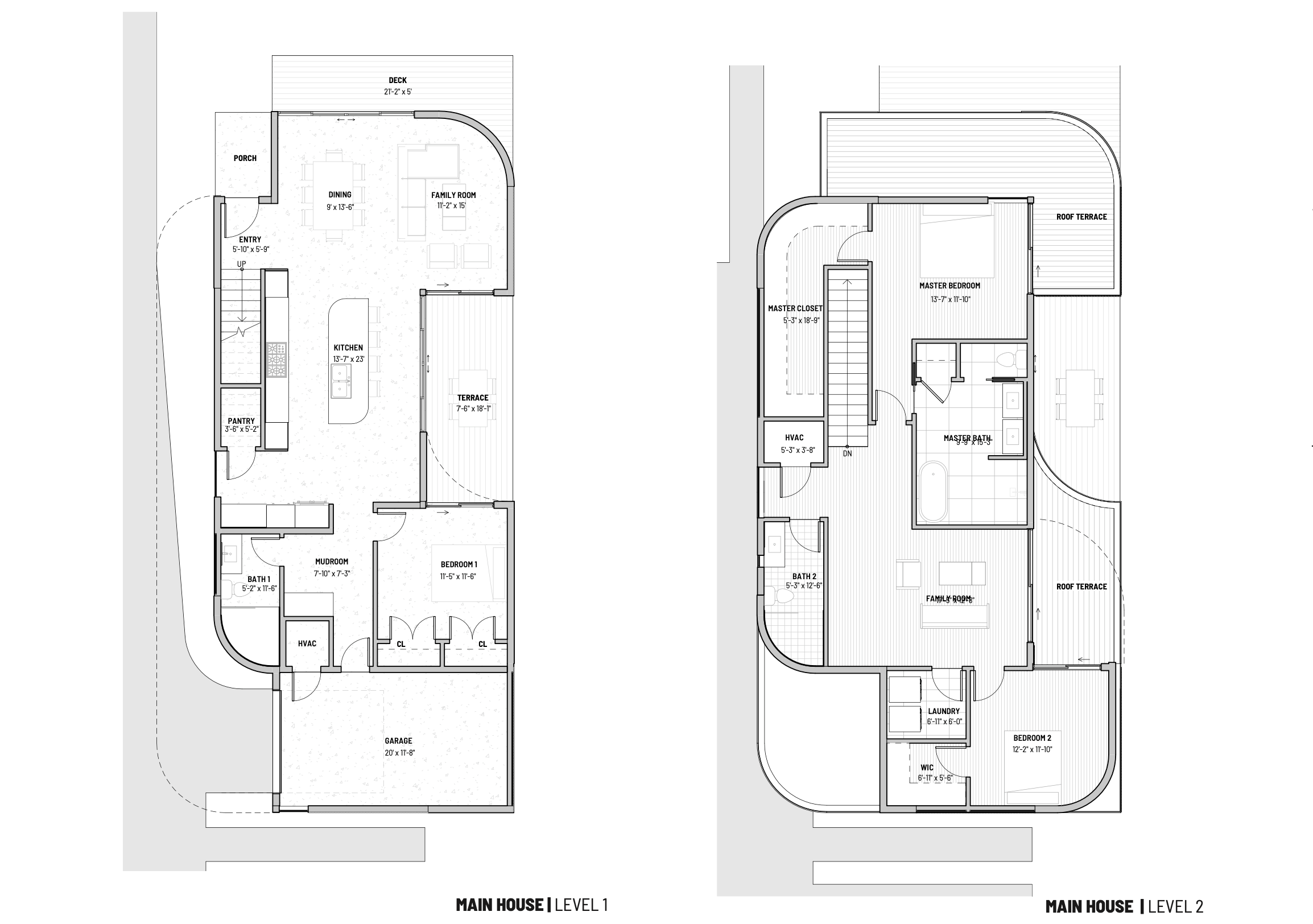
Floor Plans
Looking into the kitchen
Quartzite Counter Top and Millwork Detail
Main Floor Bathroom
Main Floor Bathroom
Skylight
Second Floor Bathroom and Curves!
Second Family Room
Second Family Room
Primary Bedroom
Terrace off Primary Bedroom
Primary Bathroom
Skylight
Sculpture Park View
Inspiration for the design - Sculpture by Tom Bandage
Site Plans
Sculpture ADU - 2 Bed, 2 Bath, Flex Room, 1,100 sqft + 186 sqft.
Flex Room
Floor Plans
Living Room
First Floor Full Bath
Primary Bedroom
Terrace off Primary Bedroom
Primary Bathroom
Inspiration for the design - Sculpture by Tom Bandage
Site Plan